logo-web

Dittrich Design GmbH

  • Home
  • Über Uns
  • Aktuelle Projekte
  • Referenzen
  • Kontakt
skysuite
skysuite2
skysuite3
Jetzt kontaktieren

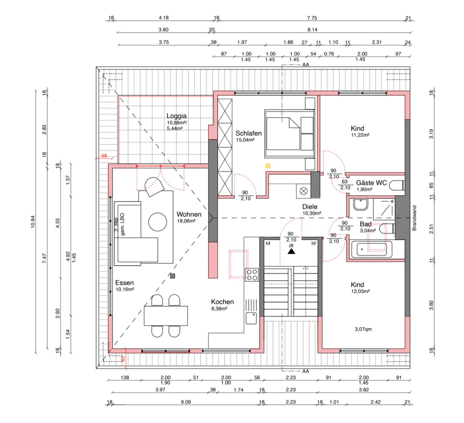
SkySuite Südstadt

Wohnen über den Dächern von Wuppertal

Am unteren Grifflenberg in der Wuppertaler Südstadt entsteht derzeit eine außergewöhnliche SkySuite-Penthousewohnung mit spektakulärem Blick über die Stadt.

Die neu geschaffene Dachgeschosswohnung mit knapp 100 qm Wohnfläche beeindruckt durch einen großzügigen Atrium-Eingangsbereich, bis zu 4 Meter hohe Decken und einen offenen Wohn-, Ess- und Küchenbereich. Drei Schlafzimmer, hochwertige Materialien, moderne Energietechnik und eine integrierte Klimaanlage schaffen ein außergewöhnliches Wohngefühl.

Eine 10 m² große Terrasse eröffnet einen beeindruckenden Blick über Wuppertal und unterstreicht den besonderen Charakter dieser Wohnung.

Ort: Wuppertal

Geplante Fertigstellung: 2026

Share
  • Home
  • Datenschutz
  • Cookie-Richtlinie (EU)
  • Impressum
  • Kontakt
© 2026 Dittrich Design GmbH. All rights reserved.
Shopping Basket
Einwilligung verwalten
Um dir ein optimales Erlebnis zu bieten, verwenden wir Technologien wie Cookies, um Geräteinformationen zu speichern und/oder darauf zuzugreifen. Wenn du diesen Technologien zustimmst, können wir Daten wie das Surfverhalten oder eindeutige IDs auf dieser Website verarbeiten. Wenn du deine Einwilligung nicht erteilst oder zurückziehst, können bestimmte Merkmale und Funktionen beeinträchtigt werden.
Funktional Immer aktiv
Die technische Speicherung oder der Zugang ist unbedingt erforderlich für den rechtmäßigen Zweck, die Nutzung eines bestimmten Dienstes zu ermöglichen, der vom Teilnehmer oder Nutzer ausdrücklich gewünscht wird, oder für den alleinigen Zweck, die Übertragung einer Nachricht über ein elektronisches Kommunikationsnetz durchzuführen.
Präferenzen
Die technische Speicherung oder der Zugriff ist für den rechtmäßigen Zweck der Speicherung von Präferenzen erforderlich, die nicht vom Abonnenten oder Benutzer angefordert wurden.
Statistiken
Die technische Speicherung oder der Zugriff, der ausschließlich zu statistischen Zwecken erfolgt. Die technische Speicherung oder der Zugriff, der ausschließlich zu anonymen statistischen Zwecken verwendet wird. Ohne eine Vorladung, die freiwillige Zustimmung deines Internetdienstanbieters oder zusätzliche Aufzeichnungen von Dritten können die zu diesem Zweck gespeicherten oder abgerufenen Informationen allein in der Regel nicht dazu verwendet werden, dich zu identifizieren.
Marketing
Die technische Speicherung oder der Zugriff ist erforderlich, um Nutzerprofile zu erstellen, um Werbung zu versenden oder um den Nutzer auf einer Website oder über mehrere Websites hinweg zu ähnlichen Marketingzwecken zu verfolgen.
  • Optionen verwalten
  • Dienste verwalten
  • Verwalten von {vendor_count}-Lieferanten
  • Lese mehr über diese Zwecke
Einstellungen ansehen
  • {title}
  • {title}
  • {title}